Discover luxury living at Urban Uniworld, a premier gated community located on the Main Ayodhya Road (Faizabad Road) in Lucknow. This approved project spans 50 bighas and offers ready-to-move-in, fully furnished 3 BHK duplex villas designed with a unique Arabian-style architectural theme.
Discover luxury living at Urban Uniworld, a premier gated community located on the Main Ayodhya Road (Faizabad Road) in Lucknow. This approved project spans 50 bighas and offers ready-to-move-in, fully furnished 3 BHK duplex villas designed with a unique Arabian-style architectural theme.
Key Property Details
Location: Ayodhya Road (Faizabad Road), Lucknow.
Project Size: 50 Bigha Gated Society.
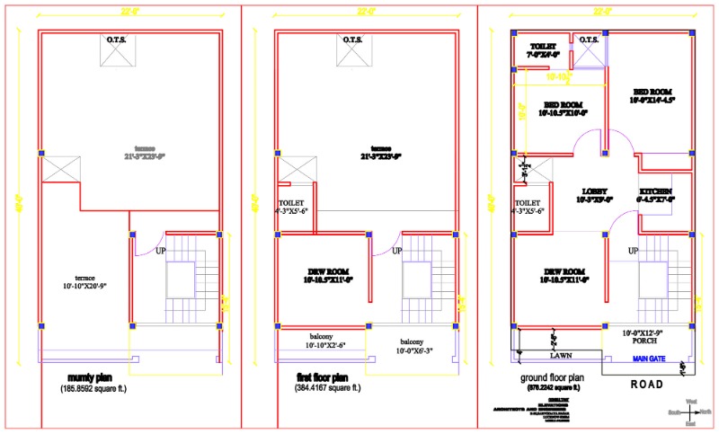
Villa Type: 3 BHK Duplex Villas (Fully Furnished).
Land Area Options: 880, 1100, 1200, and 1250 sq. ft.
Starting Price: ₹ 80 Lakhs up to ₹ 1.10 Crore.
Approval: Zila Panchayat Approved
Bank Financing: Loan facilities available from major nationalized banks including SBI, PNB, and Bank of Baroda.
Prime Location Advantages
Connectivity: Just 800 meters from the main Ayodhya Road.
Transport: Future Metro Station and Bus Stand are planned within 1 km (near BBD/Outer Ring Road).
Healthcare & Education: Proximity to CMS School, BBD University, Ramswaroop School, and Goel Hospital.
Elite Neighborhood: Already home to over 70 families, including Navy officers, Forest officers, and doctors.
Infrastructure: 50-feet wide main roads and 30-feet wide internal link roads.
Security: 24/7 security with a gated entrance, high boundary walls with barbed wire, and comprehensive CCTV surveillance.
Utilities: Centralized water tank, underground sewerage with a functional STP (Sewage Treatment Plant), and proper street lighting.
Lifestyle: 5 large landscaped parks with children’s play areas.
Convenience: An in-house shopping complex with 40 shops and a dedicated ICICI Bank branch & ATM.
The villas are offered in a "Plug & Play" mode with high-end interiors:
Living Area: Includes designer sofa sets, chandeliers, and false ceilings.
Kitchen: Fully modular kitchen equipped with a chimney, RO, and geyser.
Appliances: Samsung LED TV, Double-door refrigerator, AC unit, and Inverter.
Bedrooms: Features wardrobes with automatic profile lighting, wall textures, and attached washrooms with Jaguar fittings.
Architecture: Unique Arabian-style design elements throughout the house.

Real Estate AI Advisor